Prescot Road, Melling, Liverpool
£650,000
Offers Over
Property Summary
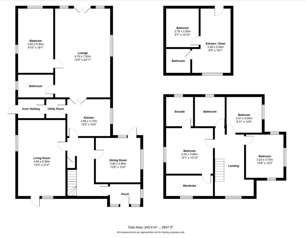
Berkeley Shaw Real Estate present this detached four-bedroom house with a one bedroom separate annex, ideal for extended family or a business. Located in the village of Melling, on the boarder of Aughton, this neutrally decorated home boasts expansive gardens and grounds extending to 0.7 acres.The main house offers three reception rooms. The principal reception room features large windows, creating a bright living space, while a further reception room provides direct access to the garden, making it well suited to everyday family use and informal entertaining. The main kitchen benefits from good natural light.
Bedroom accommodation includes a master bedroom with en-suite, two further double bedrooms and a ground floor bedroom served by a ground floor bathroom. The master en-suite includes a dedicated bathroom, while an additional bathroom offers a rain shower. The one-bedroom annex provides its own bedroom, kitchen, shower room and reception room, ideal for multi-generational living or guest accommodation.
Externally, the property benefits from off-street parking and a garden, with the surrounding area offering pleasant walking routes and a generally sought after residential setting.
Melling is well placed for local amenities, with nearby communities such as Maghull and Aintree offering supermarkets, cafés and everyday services. The area is served by nearby train stations including Maghull and Aintree, with regular services into Liverpool city centre typically taking around 15–20 minutes, connecting at stations such as Moorfields and Liverpool Central. Road links via the A59 provide straightforward access into central Liverpool and towards the motorway network.
Property Features
- Four bedroom detached family home
- Detached one bedroom annex
- Expansive gardens and grounds extending to 0.7 acres
- Air conditioning units in two bedrooms
- Master bedroom with walk in wardrobe and ensuite
- Private gated entrance and driveway parking for several vehicles
- Viewing highly advised










































































